王子锋
摘要:在高等院校图书馆中,照明能耗占比高于普通公共建筑,有效降低其照明能耗对建筑节能具有明显作用;考虑到图书馆建筑书库和阅览室数量较多,而且人员流动随机性高,采用合适的智能照明控制技术,可以有效降低照明系统能耗,基于这种认识,研究对某高校图书馆的照明系统实施了智能照明控制,以室内照度和人员活动检测为依据,自动控制照明光源的通断,经实际应用与对比测试,照明系统能耗降低30%左右,节能效果明显,这种控制模式非常适合于在图书馆类建筑中推广应用。
关键词:智能照明;节能;图书馆
0 引言
在高等院校图书馆中,由于开启时间长和人员流动性高,加上书库和阅览室数量较多,照明能耗占比明显高于普通公共建筑,根据某大学图书馆能耗数据分析,尽管已经将光源全部更换为T8序列荧光灯,照明能耗占比仍然较高,占建筑总能耗的比例超过 35%;经深入调査与分析,图书馆主要功能为书库、阅览室和办公室,其中书库、阅览室照明面积大,光源密集,对照度要求高,光源安装功率也较高,在图书馆开放时间内,室内照明光源基本上全部处于开启状态,尤其是上课时间,书库、阅览室人员较少,长明灯随处可见,照明全部开启明显会造成能源浪费;由于照明系统管理为人工集中控制,无法根据实际情况控制照明光源的开启,这是造成照明系统运行能耗较高的主要原因。因此,采用合适的智能照明控制方式可以减少不合理使用光源的现象,进而降低照明系统运行能耗。
1 智能照明系统方案
基于上述分析,本研究对图书馆的书库、阅览室的照明系统实施了智能照明管理与控制,提供定时控制、无人感应控制和照度控制3种模式
定时控制模式适用于书库、阅览室的照明,根据图书馆开放时间和管理要求,实现照明系统定时控制,以提高管理效率。
无人感应控制模式适用于书库区域,考虑书库应用特征,对照明系统实施局部智能照明管理与控制; 将书库的照明光源按书架布置实施分区控制,开放时间内,仅保持主要通道的照明光源开启,书架区域的光源则实施局部智能照明管理,采用双鉴探测器作为人员活动探测器,以此为依据,在有人查阅书刊时,自动开启查阅区域的照明,在无人或人员离开后,则自动关断查阅区域照明;通过这种控制模式,在满足查阅要求的前提下,降低照明光源开启时间,降低照明能耗。
照度控制模式适用于阅览区域,考虑阅览特征,对照明系统实施局部智能照明管理与控制;将阅览区域的照明光源按书桌布置实施分区控制,除对书桌区域的光源根据人员活动检测实施局部智能照明管理外,对靠近外窗的书桌区域,增加照度检测,在照度达到预先设置的照度时,自动关断该区域照明,当照度低于预先设置的照度时,自动开启该区域照明;通过这种控制模式,在满足阅读要求的前提下,降低照明光源开启时间,降低照明能耗。
为考虑发展与管理需求,智能照明系统按网络控制系统模式设计,配置系统管理平台,可以在平台上设置和修改照度与双鉴探测器触发阈值,满足调试要求;可在平台上设置图书馆周程,实现定时自动启停要求;并在书库、阅览室设置系统设置智能电表,实现能耗数据釆集与统计;同时可在平台显示启停照明的照度阈值和现场照度实测值,显示人员活动信息(是否有人)和对应的照明光源状态、延时时间等参数,具备故障诊断功能,自动显示故障状态和定位故障位置,并按管理要求提供报表管理与输出等管理功能。
系统管理平台支持数据远传,可将能耗数据等传输给校园节能管理平台。系统结构如图1所示。

图1中的智能照明控制器具备常规模式/智能照 明模式切换功能,选择具备常规模式运行,可按原照明配电方式运行;选择智能照明模式则按上述控制逻辑运行;照明控制器具有网络离线检测功能,在网络故障时自动切换为常规模式运行,提高系统可靠性,保证正常使用;这种切换方式也为测评节能效果提供了技术支持。
2 智能照明系统实施
本研究采用上述智能照明方案,对图书馆的17间书库和阅览室实施了照明节能改造,根据每一间书库和阅览室的布置和灯具位置进行了针对性设计,划分分区控制区域和选择相应控制模式,图2是其中一间书库的智能照明布置方案示意图。
该书库面积约2 000 ㎡,包括书架区域和阅读区域,左侧为自由阅览区域,其余为书库,共246个灯组。仅采用定时控制模式,在开放时间内开启灯组,以保持书库环境照明;阅览区域采用照度控制和无人感应控制模式,配置4个线性光电照度传感器和19个双鉴探测器,照度和双鉴探测器的触发阈值可在平台或现场设置和修改,按照度优先原则控制,在满足预先给定的照度时,关闭照明,在不满足照度时,启动人员活动控制模式,在有人活动时开启照明,无人活动时延时关闭照明,这种逻辑可避免阅览室在照度满足要求时,以人员活动为标准而开启照明。书架区域则仅设计无人感应控制模式,每个灯组配置一个双鉴探测器,实施区域照明控制,在有人活动时开启照明,无人活动时,延时关闭照明;

该书库共配置6个智能照明控制器,照度传感器 和双鉴探测器信号釆用总线拓扑分别送入6个智能照明控制器,由智能照明控制器按预先设计的逻辑, 判断灯组的启停。另外在书库配电箱处配置1块三相智能电表,实现能耗数据监测和能耗数据远传。
书库照明平面、照度传感器和双鉴探测器信号、灯组状态、故障信息灯均可在管理平台显示和查询, 并可按管理要求提供报表输出。
其余16个书库照明按上述原则完成设计,组成智能照明控制系统,在管理平台完善对应的图形化照明平面和对应的信息,即可完成17间书库的智能照明系统节能改造。
3 智能照明系统能效测评
3. 1智能照明系统节能率分析
由于在设计时,对17间书库配置了智能电表,同时智能照明控制器可以选择常规(改造前)模式和智能照明模式,可以方便地完成能效数据采集。在完成智能照明系统改造并经过试运行后,将书库按改造前模式运行一周,然后切换为智能照明模式运行一周, 记录消耗电能,选择运行一周时间,基本能说明对应的能耗情况。

测试结果如表1所示,图3是2种模式对比柱状图。
由表1和图3可看出,智能照明模式运行时的耗电量明显低于改造前,18个书库的节能率大部分保持在20%以上,总节能率达31%,即实施智能照明控制后,书库耗电量明显降低。

由表1和图3也可看出,房间功能对节能率影响 明显。图4是204,307,502测试周内每日能耗数据对比图。由图3可看到,各房间媒体耗电量比较平稳, 可排除特殊用电情况的影响,节能率的差异主要受房间功能的影响。中文书库的节能率基本在25%-32% 之间,因为功能相近差异不大,主要是阅览区域大小的影响;502房间为外文书库,相对而言,借阅的人次较少,因此节能率高达52%;同样,303和304房间为过刊库,借阅的人次较少,节能率也较高。306和307房间同为现刊阅览室,但306房间节能率达46. 2%,307 房间节能率仅为12. 6%,经现场了解,306房间主要是科技期刊,借阅人次较少,而307房间为文娱期刊,借阅文娱期刊的人次多,照明开启时间长,节能率明显 低于其他房间;513房间为音乐、舞蹈、声像资料馆,该类书目较为受欢迎,借阅人次多,节能率较低。
根据上述数据与分析,对于图书馆的书库与阅览室,目前还不宜采用LED光源,加上人员随机性和分散性特征明显,采用智能照明控制模式可以获得非常明显的节能效益。对本图书馆照明节能改造可获得30%的节能率;保守估计,对此类建筑,实施智能照明 控制,也可实现25%以上的节能率;另外,借阅人次对节能率影响较明显。


3.2 智能照明系统经济性分析
图书馆18间书库、阅览室改造前模式运行一周耗电量为11741kW・h,按学校规律,全年图书馆开放时间大约为44周,耗电量为516 604 kW-h,按保守平 均节能率25%计算,可以节省129 151 kW・h,按 1 7E/kW.h计算,可以获得12.9万元收益;完成该18间书库、阅览室智能照明改造的合同金额为29. 8万元, 大约在3年可回收节能改造投入;如果按30%节能率计算,回收周期更短,节能改造经济性较合理。
对于书库区域,本改造方案采用一组双鉴探测器对应一个灯组的控制模式,经过运行分析,釆用一组双鉴探测器对应2个灯组的控制模式更为合理,可以使控制区域照度更均匀,同时,也可减少智能照明控制器数量,进一步降低改造费用。
4 安科瑞智能照明控制系统
安科瑞智能照明控制产品种类齐全,方案完善。用户可通过控制面板、人体感应、照度感应、微波感应、上位机系统、触摸屏、手机、平板端等多种控制终端实现灵活多样的智能化控制,特别适合于各类智能小区、医院、学校、酒店,以及体育场所、机场、隧道、车站等大型公建项目的照明系统。
产品选型方案
安科瑞智能照明产品种类齐全,方案完善。用户可通过控制面板、人体感应、照度感应、微波感应、上位机系统、触摸屏、手机、平板端等多种控制终端实现灵活多样的智能控制,特别适合于各类智能小区、医院、学校、酒店,以及体育场所、机场、隧道、车站等大型公建项目的照明系统。
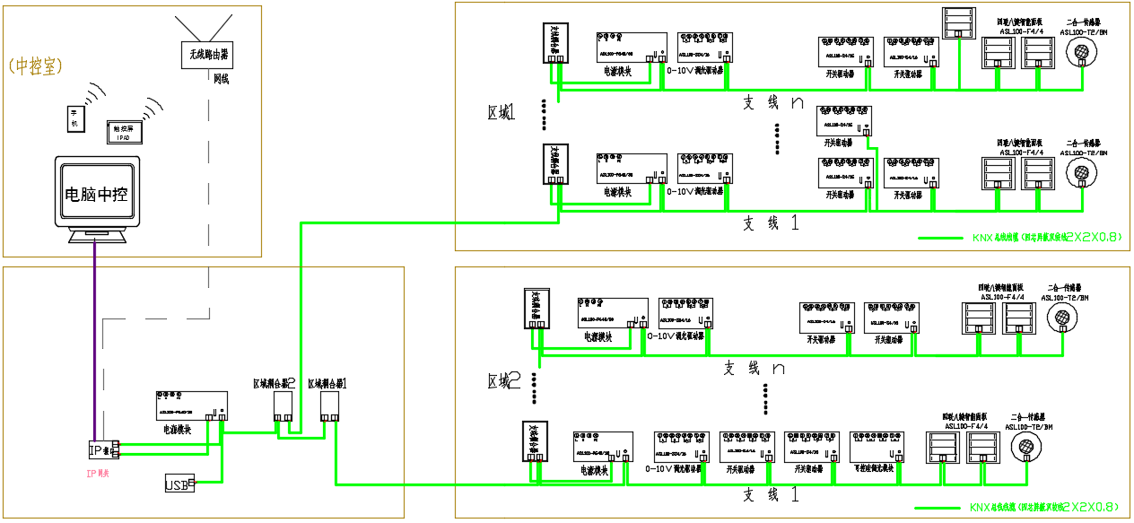
4.1系统工作原理示意图

4.2开关驱动器
用于对设备进行开关控制的驱动器,具有延时、预设、逻辑控制、场景、阈值开关等功能,电气参数如下:

4.3调光驱动器
2路0-10V调光器,可对每路进行回路开关控制并输出 0-10V 调光信号对具有 0-10V 调光接口的灯具进行调光,具有开关、场景、状态反馈等功能,电气参数如下:

4.4传感器
传感器是一种能感受外界信号、物理条件(如光、移动)的设备装置,并将感应的信息传递给其它设备装置(如调光器、开关驱动器),电气参数如下:

4.5总线电源
KNX/EIB 系统标准供电电源,为总线提供电压640mA 输出电流,可以为 64 个设备供电,带总线复位、 过流指示和短路保护。标准导轨安装,电气参数如下:

4.6智能面板
用于接受按键触动信号,可通过区分短按与长按并结合不同参数配置实现开关、调光、场景、窗帘控制、调温、报警等功能,电气参数如下:

4.7干接点输入模块
用于接受外部干接点信号输入,可通过不同参数配置实现开关、调光、场景、窗帘控制、调温、报警等功能,电气参数如下:

4.8系统功能
1)光照度(需要配照度传感器)监测,对利用自然光照明区域,根据自然光照度变化,进行照明控制和调节,满足照明和节能要求;
2)公共区域、走廊、通道、门厅、电梯厅等的照明,应设置红外或微波类人体感应器,并结合智能控制面板,实现各种场景照明控制,尽可能较少灯具点亮时间;
3)楼梯间照明采用人体感应探测控制;
4)设备房、设备房走道采用分组就地控制;
5)室外路灯、景观等照明采用光照度控制结合时控的集中控制方式;
6)监控系统界面友好,画面美观,实时显示各区照明工作状态;
7)应具有完善的用户权限管理功能,避免越权操作;
5 结语
本项目根据图书馆中书库、阅览室的使用特征, 采用智能照明控制模式完成书库、阅览室照明节能改造,有效避免书库、阅览室照明长期开启的不合理现象,通过分区域合理控制照明启停,获得了良好的节能效益,整体节能率在30%左右,节能改造回收周期小于3年,而且改造施工简单,基本不影响用户正常工作,如果在图书馆照明设计时,即采用智能照明控制模式,可以获得更好的节能效益,并且节能效果受馆内人员的流动性影响,借阅人次少,人员流动性高的情况下节能效果更为显著。这种控制模式非常适合于在图书馆类建筑中推广应用。

